В статье мы поговорим о том, как разработать планировку частного дома. Перечислим, какие детали нужно учесть в проекте, чтобы коттедж получился удобным, уютным и стильным.

Определите потребности
Создавая проект дома, необходимо учитывать множество нюансов. От них зависят число и расположение комнат, санузлов и прочие параметры:
- количество человек, которые будут жить в коттедже;
- состав семьи, есть ли дети или пожилые люди;
- установленные нормы площади — они составляют 33 м² на одного человека, 42 м² на двух владельцев, 18 м² жилой площади на каждого, если в семье более трех человек.
Проанализируйте образ жизни, привычки всех членов семьи. Например, когда в доме часто принимают друзей, стоит позаботиться о просторной гостиной. Если хозяева увлекаются резьбой по дереву или живописью, нужно предусмотреть место для мастерской либо студии.
Также при проектировании жилья необходимо учитывать бюджет семьи. При ограниченных финансовых возможностях выбирайте каркасный дом простой формы и лаконичный стиль интерьера, в котором необязательно использовать дорогую отделку.
Начните составлять проект
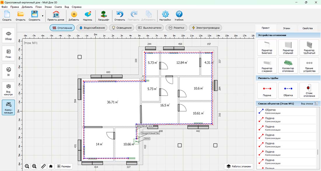
Чтобы избежать перерасхода стройматериалов, затягивания сроков работ, других неприятностей, заранее продумайте и создайте проект жилья. Сейчас есть довольно доступные программы — например, Мой Дом 3D. В этот планировщик встроены подсказки. Некоторые конструкции дома — например, крыша — создаются из шаблонов. Такие упрощения позволяют делать проекты людям без строительного образования.

В числе других преимуществ программы:
- возможность планирования мансарды и цокольного этажа;
- выбор крыльца и террасы из каталога, проектирование гаража;
- создание чертежей расположения инженерных коммуникаций;
- более 1150 видов материалов для внешней и внутренней отделки коттеджа;
- каталоги с мебелью и элементами декора, рассортированные по категориям для гостиной, детской, спальни, других помещений;
- расчет сметы.
Эта программа для планировки дома позволяет оценить результат в режиме 3D, выбрать подходящий стиль оформления фасада и интерьера. При необходимости вы сможете внести коррективы на любом этапе.


Попробуйте разработать свой проект загородного дома. Далее мы расскажем об основных нюансах планирования.
Разделите дом на зоны
При зонировании дома учитывайте предназначение помещений, шумоизоляцию, количество поступающего внутрь дневного света.
Хороший пример планировки дома предполагает выделение нескольких основных функциональных областей:
- Индивидуальные — спальни, детские лучше расположить на втором этаже, окнами во внутренний дворик. В одноэтажном жилье их следует разместить подальше от гостиной, кухни и прихожей, в тихой части строения.
- Общие — гостиную, столовую, кухню стоит сделать на первом этаже, организовав удобные проходы между ними.
- Хозяйственные — кухню, бойлерную, гардеробные, кладовые лучше обустроить поближе друг к другу, желательно предусмотреть выход в хозяйственный дворик, санузлы сделать недалеко от кухни и спален.
Гараж и котельную лучше пристроить снаружи, подальше от жилых зон. Общую стену между техпомещениями и самим коттеджем обработайте противопожарным составом, обеспечьте гидро- и теплоизоляцию. Смонтируйте в гараже мощную вентиляцию, которая будет справляться с выхлопными газами. Организуйте удобный подъезд к технической зоне — это обеспечит беспрепятственный доступ к установленному там оборудованию для обслуживающих организаций.

Составьте список необходимых помещений
Опишем самые распространенные варианты жилых и нежилых пространств.
Гостиная
Эта комната должна быть минимум 18 м². Гостиную можно визуально разделить на области: для просмотра телевизора, чтения, обеденную и другие. Для зонирования допустимо использовать мебель, отделочные материалы разных оттенков и текстур, перегородки. При этом комната должна смотреться гармонично, ее следует оформить в едином стиле. Хорошо, если получится установить камин — он может стать ярким центром всей композиции, настоящим «сердцем» дома.
Желательно сделать в гостиной 2 или 3 больших окна. Стильно смотрится панорамное остекление, открывающее вид на приусадебный участок — для этого важно, чтобы территория была ухоженной. Очень просторными выглядят дома с двойным светом, когда в части строения отсутствует перекрытие между первым и вторым этажом. Окна при этом можно сделать цельными.
В темное время суток используйте разноуровневое искусственное освещение. Оборудуйте отдельными приборами каждую функциональную зону. Выбирайте люстры, бра, торшеры с возможностью регулировки интенсивности и температуры света.

Кухня-столовая
Объединенную кухню-столовую желательно организовать на первом этаже. Так к ней будет проще подвести инженерные коммуникации: водопровод, вентиляцию, канализацию, электричество, газ.
Продумайте зонирование пространства — предусмотрите функциональные области: для готовки и обеденную. Визуально разделить их можно несколькими способами:
- с помощью разной отделки пола, стен, потолка — для зоны готовки необходимо использовать материалы, устойчивые к воздействию влаги, температурным перепадам, механическим повреждениям (керамическую плитку, керамогранит и другие);
- крупной мебелью — поставьте на границе кухни и столовой барную стойку или оборудуйте остров;
- раздвижными прозрачными перегородками, ширмами;
- стеллажами с красивой посудой или комнатными растениями на полках;
- арками, колоннами — особенно хорошо эти конструкции впишутся в классический интерьер;
- полом разного уровня — поднимите на подиум кухонную либо обеденную часть помещения;
- многоуровневым освещением — отдельными лампами, бра, точечными светильниками нужно оснастить каждую зону, над столом хорошо повесить интересную люстру.
На этапе планировки жилого дома рассчитайте количество розеток, необходимых для подключения бытовой техники, зарядки гаджетов.

Спальни
Оптимальной площадью спальни для одного человека считается 12-15 м², для двоих — 18-25 м². Эти комнаты в большинстве случаев располагают на втором этаже — так пространство получается более уединенным. Возможно, пожилым людям будет удобнее спать внизу — тогда важно, чтобы рядом не было шумных зон.

Детская
Детские размещают на солнечной стороне дома, подальше от кухни и гостиной, из которых могут доноситься шум или запахи готовки. Комнату малыша до 6 лет желательно расположить рядом с родительской спальней: взрослым станет проще ухаживать за ребенком, а у детей будет ощущение защищенности.
Обязательно зонируйте пространство, выделив игровую, спальную, учебную части, также организуйте область для хранения вещей. Меняйте мебель по мере роста ребенка, чтобы малышу было удобно спать, делать уроки. Если не хотите покупать новые предметы обстановки слишком часто, используйте модели-трансформеры, изменяемые по высоте и длине.

Комната для гостей
Если площадь позволяет, при планировке загородного дома предусмотрите гостевую комнату. Дизайнеры советуют делать ее не меньше 10-12 м². Обставьте пространство мебелью. Для комфортного размещения друзей и родственников потребуются диван или кровать, шкаф, небольшой столик, зеркало, комод. Дополнительно можно поставить раскладное кресло-кровать.
Позаботьтесь о наличие нескольких розеток для зарядки гаджетов. Организуйте хорошее многоуровневое освещение: можно повесить красивую люстру на потолок, бра у кровати и туалетного столика.

Кабинет
Рабочее место сделайте в самом укромном уголке дома, где получится обеспечить максимальную тишину, уединение. При необходимости установите дополнительную звукоизоляцию.
Разделите пространство на зоны работы, хранения и отдыха. Продумайте расположение стеллажей для необходимой литературы и документации. Компьютерный или письменный стол поставьте поближе к окну, чтобы на рабочую поверхность попадало как можно больше естественного света. Также позаботьтесь о хорошем искусственном освещении.
Обеспечьте достаточное количество розеток для подключения компьютера, другой техники. Разместите их у стола, чтобы не тянуть провода через весь кабинет.

Санузлы
Идеальная планировка дома предполагает организацию двух санузлов. Первый — около спальни хозяев, с ванной или душевой кабиной, площадью 6-8 м². Второй — гостевой санузел на первом этаже размером не менее 4,5 м². Если в коттедже живет большая семья, дизайнеры рекомендуют обустраивать по одному туалету на каждые две спальни.
Размещайте санузлы поближе к кухне — это поможет сократить длину труб водопровода и канализации, снизить стоимость их подведения. Если обустраиваете туалеты друг над другом в двух- или трехэтажном доме, точно рассчитывайте нагрузку на перекрытия. Иногда их приходится укреплять.
Размеры санузлов могут быть разными — главное, чтобы оставалось достаточно места для размещения сантехники, передвижения по помещению.

Прихожая
Комфортный размер коридора — минимум 1,2 м в ширину, 1,5 м в глубину. Предусмотрите места для необходимых систем хранения и другой мебели.
Хорошо, если в прихожей будет:
- шкаф-купе для сезонной одежды;
- обувница;
- пуфик или банкетка, на которые можно сесть, чтобы обуваться и разуваться;
- открытые вешалки — на них можно оставлять повседневные вещи или одежду гостей, верхнюю полку оставить для головных уборов;
- полочка для мелочей — ключей, зонтов, перчаток и прочего.
Повесьте у входной двери зеркало. Оно обеспечивает дополнительный комфорт, поскольку дает возможность осмотреть себя перед выходом на улицу.

Кладовая
Лучшая планировка дома предполагает организацию двух кладовок. Первая делается около кухни для хранения продуктов, а вторая ближе к входу — для складирования сезонной одежды, хозинвентаря. Иногда небольшой чулан делают под лестницей на второй этаж или в нише в стене.
В зависимости от количества и вида предметов, которые планируете хранить, оборудуйте кладовую полками, ящиками. Обязательно оставьте проход между стеллажами минимум 60 см.
Организуйте хорошее освещение и вентиляцию, особенно если в комнатке отсутствуют окна. Это сделает использование кладовой удобным, избавит от затхлого запаха.

Постирочная
Комнатку для стирки и глажки вещей лучше разместить на цокольном этаже. Ее необязательно делать просторной. Достаточно небольшого помещения, в котором встанет стиральная машина, а также «сушилка» и гладильные приспособления.
Предусмотрите шкафчик для хранения порошков, кондиционеров, прочей бытовой химии. Сделайте несколько полочек для высушенного и глаженного белья.
Если для отдельной постирочной не хватает площади, допустимо выделить место в ванной комнате. Для экономии места используйте вертикальные сушилки для развешивания вещей, подвесные шкафчики.
Продумайте хорошую вентиляцию — она необходима, чтобы предотвратить появление плесени, запаха сырости. Когда нет возможности подвести полноценную систему, установите вытяжной вентилятор.

Учитывайте стороны света
Нужно располагать комнаты с учетом того, на какую сторону будут выходить их окна:
- юг — здесь лучше разместить гостиную, столовую, детские, поскольку для них важно максимальное поступление дневного света;
- север — подойдет для нежилых, технических помещений: котельной, гаража, кладовых, санузлов и прочих;
- восток — чтобы восходящее солнце сделало утреннее пробуждение приятным, расположите на восточной стороне спальни, кухню;
- запад — здесь будет приятно проводить тихие вечера, любуясь закатом с террасы, веранды или балкона.
Входную дверь дизайнеры советуют делать на северо-восточной стороне. Так в дом будет попадать меньше холодного воздуха зимой, потому что самые ледяные ветра чаще дуют с севера и северо-запада.
Продумайте инженерные коммуникации
Самая удобная планировка дома — та, в которой исправно функционируют инженерные сети. Нужно предусмотреть обязательные коммуникации:
- водоснабжение;
- канализацию;
- отопление;
- газоснабжение — если этот вид топлива предполагается использовать для обогрева или готовки;
- электроснабжение;
- вентиляцию;
- слаботочные сети — интернет, телефонию, телевидение и другие.
Для коммуникаций лучше разработать несколько листов чертежей. Чтобы определить длину труб, проводов, места их проведения по участку, обозначьте расположение дома и дополнительных построек. Учитывайте особенности придомовой территории, близость грунтовых вод, уклон, другие факторы.
При проектировании электросети рассчитайте максимальную нагрузку на нее. Подумайте, какие приборы будут работать одновременно. Исходя из этого выбирайте защитные устройства, размер сечения кабеля.
Для проектирования коммуникаций можно обратиться в специализированную организацию. Однако если вы достаточно разобрались в теме, разработайте схемы инженерных сетей самостоятельно. Создать вариант планировки дома с коммуникациями можно в программе Мой Дом 3D.

Подводим итоги
Приступая к строительству загородного дома, учитывайте следующие моменты:
- разделите пространство на жилые и хозяйственные зоны;
- продумайте количество санузлов;
- разработайте схемы подведения инженерных коммуникаций;
- выберите стиль оформления коттеджа, отделочные материалы, мебель;
- составьте смету.
Чтобы избежать ошибок, создайте проект дома. Так вы сэкономите и точно не разочаруетесь в результате.
___________________________________________________
Реклама
Рекламодатель: Молодцова Анастасия Павловна
ИНН: 502301853585
Erid: 2VtzqvuApLb












Комментарии (0)