Проект дачного сезонного дома 6х6 м с террасой 1.4 м
Сруб из массива бруса 150х(h)100 мм в теплый угол

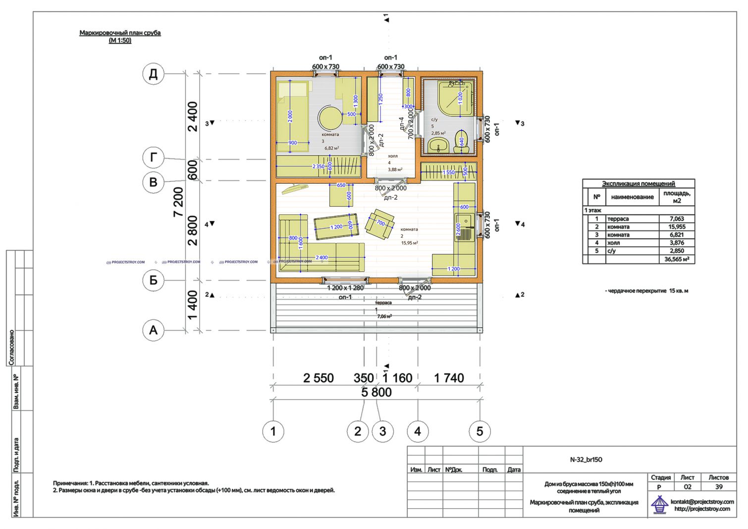
-общая площадь по экспликации - 37 кв. м
-объем массива бруса 150х100 мм - 18 куб. м из 6 м
-пог. длина бруса - 1220 п.м
-пог. фундамента - 44 м
-балки - 100х200 мм
-стропила - 50х200 мм
-площадь кровли и периметр - 74 кв. м и - 53 пог. м
-угол кровли -22 гр.
-высота 1-го этажа в парной - от 2.4 м
-высота строения - 4.7 м













Комментарии (0)