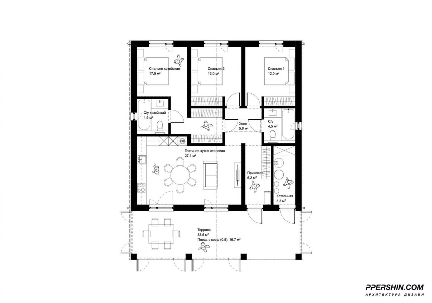
Дом в минималистичной архитектуре площадью 111,4 м².

Территория под застройку располагается вблизи Таганрога, недалеко от Таганрогского залива Азовского моря. Климат относительно сухой, но с избытком тепла, что требует мер по солнцезащите дома.
В проекте решались 2 основные задачи:
- создание компактной, но функциональной и удобной планировки на участке 5 соток;
- создание спокойного, но необычного образа типовых домов, учитывая уже построенные дома, заданные решения по конструкциям, отделочным материалам, цветовой гамме, забору.

Помимо данных задач будущая застройка типовыми домами должна иметь:
- единую философию и архкод;
- развитие типовой линейки в меньшую и большую сторону, чтобы люди могли выбрать дом больше или меньше.

Решением стал русский минимализм. То есть минималистичная архитектура с приемами традиционной русской архитектуры. Праобразом стала архитектура русских усадеб 18-19 веков. Эта идея нашла свое отражение и в расположении дома на участке, и в планировке, и, конечно же, во внешнем виде: симметричная архитектура, повторяющийся шаг элементов фасадов и конструкций, планировка с движением по осям дверей или "на свет", угол наклона кровли взят с исторических домов, внимание к деталям. За детали проекта отвечает уже минималистичная архитектура: раскладка облицовочного кирпича без подрезок в плане и по высоте, оригинальные решения узлов с отсылкой к истории, найденные пропорции, баланс элементов. Солнцезащитные ставни тут также создают двойное прочтение: это и отсылка к историческим деревенским русским домам, и функциональный элемент определенных пропорций с минималистичными узлами.






Эскизы и варианты:




Архитектор: Петр Першин.
Застройщик: «Борцов Групп», г. Таганрог.
Проект: закрытый коттеджный поселок «Архитектор».










Комментарии (0)