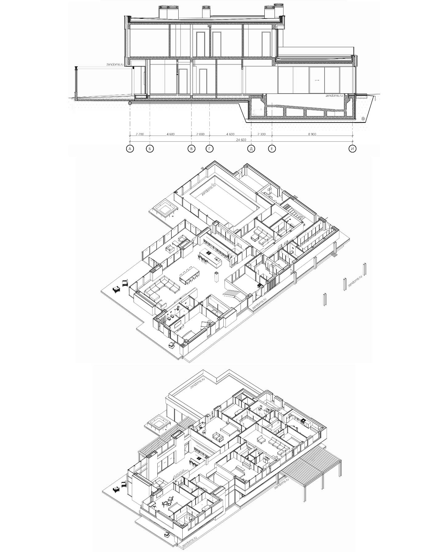
Проект дома «Заречье»

Подпишитесь на канал

Номинация: «Малоэтажный цифровой стандарт»

2 место

Автор: Зенков Сергей Вячеславович
Нижний Новгород

62af82c6304670e54ce42487fffb3137.jpg

35a4c4bb4c13cf5d65383485c1063453.jpg

38cccc8ea8b3c03c79878298e5ff2968.jpg

Комментарии (0)

Пожалуйста, авторизуйтесь или зарегистрируйтесь для комментирования!