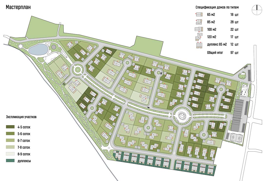
Номинация: «Серия индивидуальных или многоквартирных жилых домов»
2 место
Авторы: Градобоева Алена Васильевна, Родичев Владимир Александрович
ООО «БОРИСОВ АРХИТЕКТС»







Номинация: «Серия индивидуальных или многоквартирных жилых домов»
2 место
Авторы: Градобоева Алена Васильевна, Родичев Владимир Александрович
ООО «БОРИСОВ АРХИТЕКТС»







Комментарии (0)