Участник конкурса «Керамогранит в архитектуре 2016»
Номинация конкурса: «Керамогранит на фасадах общественных зданий»
Автор: Афанасьева Дарья, Академия Архитектуры и Искусств Южного Федерального Университета
г. Ростов-на-Дону
Год создания проекта: 2016
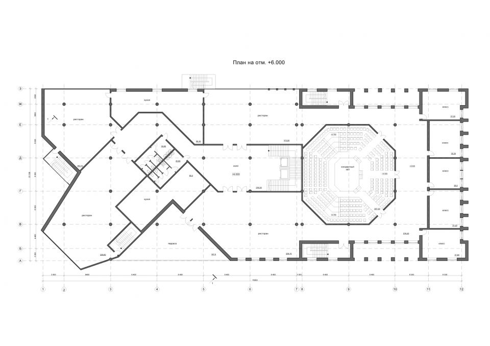
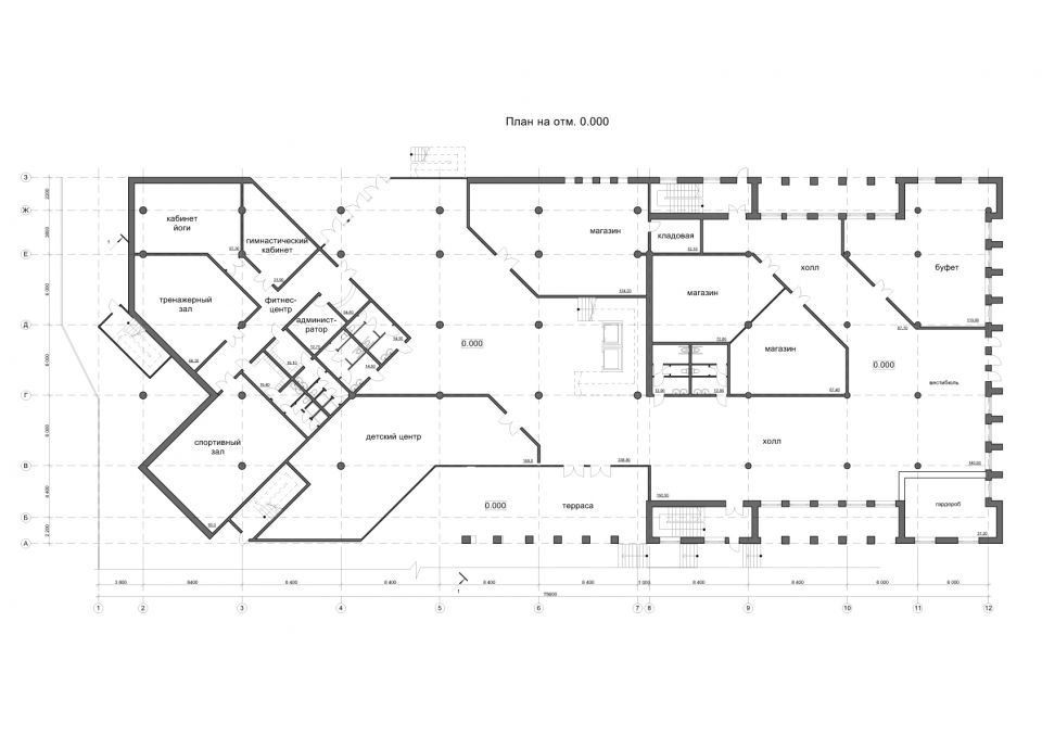
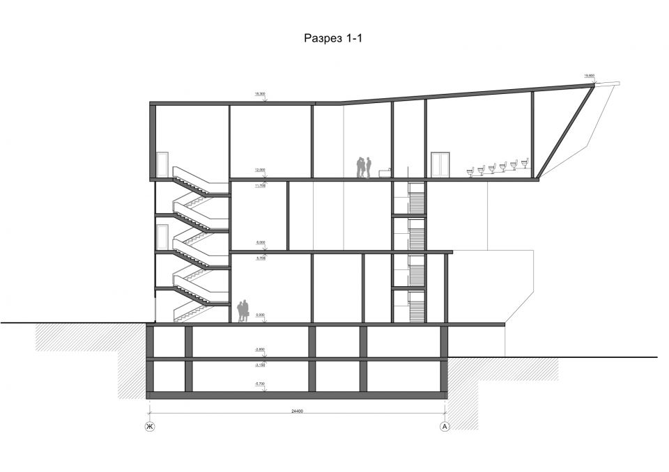
Кинотеатр Россия был построен в 1958 году, он стал первым на юге панорамным кинотеатром. На тот момент в СССР таких кинотеатров было всего четыре: в Москве, Ленинграде, Киеве и Ростове. Кинотеатр всегда был дорог и любим ростовчанами. Поэтому основной задачей проекта было сохранить, оставшиеся после разрушения, фасады кинотеатра и создать новое на месте утраченных фасадов части джазового центра имени Кима Назаретова. Сохранившиеся фасады, созданные Эбергом, необходимо было сочетать с новым стилем, сочетать не сочетаемое, добиться гармонии между классическими формами кинотеатра с деконструктивистким стилем новой части. В данном проекте фасад по ул. Пушкинской более спокойный и поддерживает динамику сохранившихся фасадов, но постепенно разрушаясь. Динамика разрушения классически-строгих форм происходит в сторону парка им. Горького. Данный фасад, разрушаясь, раскрывается в сторону парка. Выходящие консоли имеют разную пространственную ориентацию, тем самым со всех путей движения людей в парке он приглашает их.
В качестве материалов фасадов предлагается использование керамогранита ESTIMA: коллекция YOUR COLOR YC 04 60х60, коллекция IRON IR 02 60x60.



















Комментарии (0)